Canyon Lake
28623G The Duke

ManufacturedFeatured

Canyon Lake
28623G The Duke

3D Tours & videos

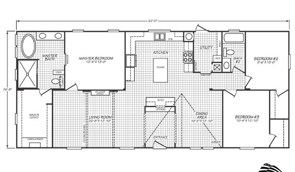
Floor plan

About this home

Elegant quality built family home with formal entry, expansive living room, beautiful bright island kitchen, formal dining room, luxurious master bedroom with glamour ensuite, lots of handsome wood grain cabinets, built-ins, LED lighting, ceiling beams, feature walls and lots of windows throughout home.

This home is offered by

Share this home

Details

Built by Cavco Lafayette
Bedrooms 3
Bathrooms 2.00
Square feet 1652
Length 62' 0"
Width 26' 8"
Sections 2
Stories 1
Style Ranch

Specifications

Exterior Wall On Center: 16” O.C.
Exterior Wall Studs: 2x4 Exterior Wall Studs
Floor Joists: 2x6 Floor Joist, 16” O.C. – 28’ & 24’ Wides / 2x8 Floor Joist, 16” O.C. – 32’ Wides
Roof Load: 20 lb. Roof Load Capacity
Roof Truss: 7/16” OSB Roof Sheathing
Side Wall Height: 8’ Sidewalls Stomped Ceilings
Insulation (Floors): R 11
Insulation (Walls): R 11
Insulation (Ceiling): R 18
Custom Options: 30” Range Hood
Exterior Lighting: Exterior Light at all Entrances
Ceiling Fans: Ceiling Fan in Living Room
Safety Alarms: Smoke Detectors Throughout
Window Treatment: 2” Blinds Throughout / Valance at all Windows
Molding: Baseboard Molding in Living Areas
Electrical Service: 200 amp Electrical Service
Furnace: Electric Furnace
Water Heater: 40 Gallon Electric Water Heater
Water Shut Off Valves: Water Shut‐Offs Throughout
Bathroom Flooring: Durable Vinyl Flooring
Kitchen Sink: Farmers Sink
Kitchen Refrigerator: Whirlpool Side – by – Side Refrigerator
Kitchen Range Type: Whirlpool 30” Deluxe Electric Range
Kitchen Lighting: Can Lights in Kitchen
Kitchen Flooring: Durable Vinyl Flooring
Kitchen Dishwasher: Whirlpool Dishwasher
Kitchen Custom Options: Microwave & French Door Refrigerator on select models
Kitchen Cabinetry: 30” Overhead Kitchen Cabinets (42” select models) / Hardwood cabinet Doors
Kitchen Backsplash: Full Ceramic Backsplash

Please note

All sizes and dimensions are nominal or based on approximate builder measurements. The builder reserves the right to make changes due to any changes in material, color, specifications, and features anytime without notice or obligation.