Developer
The Nelson 32

ManufacturedModularMH Advantage

Developer
The Nelson 32

3D Tours & videos

No 3d Tour Available

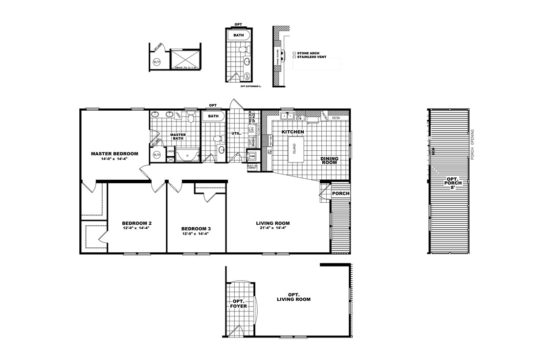
Floor plan

About this home

The Nelson 32 – 32DEV32563BH

This home is offered by

Share this home

Details

Built by Schult Waco 2
Bedrooms 3
Bathrooms 2.00
Square feet 1620
Length 56' 0"
Width 32' 0"
Sections 2
Stories 1
Style Ranch

Specifications

Exterior Wall On Center: 2X4 Exterior And Marriage Walls
Floor Decking: OSB T&G Floor Decking
Side Wall Height: 8 1/2’ Sidewall Height
Insulation (Floors): R11
Insulation (Walls): R11
Insulation (Ceiling): R21
Door Locks: Keyed Alike Locks & Deadbolts
Front Door: 36” Steel Front Door w/ Storm Door
Rear Door: Cottage Rear Door
Shingles: 20 Year Fiberglass Shingles
Siding: Smart Panel Siding
Window Trim: 1” Mini Blinds Throughout
Window Type: Low E Thermal Windows Gridded
Front Rear Eaves: 12” Eaves
Ceiling Texture: Textured Ceilings
Door Carpet Type: Vinyl Foyer Entry
Safety Alarms: Smoke Detectors All Bedrooms & Lvr
Window Treatment: 1” Mini Blinds Throughout
Window Type: Low E Thermal Windows Gridded
Interior Doors: 32” Interior Passage Doors / Six Panel Interior Doors
Interior Lighting: 13” Dome Bedroom Light Fixtures
Electrical Service: 200 Amp Total Electric
Water Heater: 40 Gallon Electric Water Heater
Water Shut Off Valves: Master Water Shut-Off
Bathroom Sink: China Sinks With Pop-Up Valves
Bathroom Lighting: Cage or Tulip Lights
Bathroom Flooring: Linoleum In Both Baths
Bathroom Backsplash: 3” Grouted Tumbled Stone Backsplash
Bathroom Toilet Type: Elongated Toilets
Kitchen Sink: Stainless Steel Sink w/ Sprayer
Kitchen Refrigerator: 18’ Brand Name FF Refrigerator
Kitchen Range Type: 30” Brand Name Electric Range
Kitchen Lighting: Recessed Can Lighting
Kitchen Cabinetry: 30” Lined Overhead Cabinets
Kitchen Backsplash: 6” Grouted Tumbled Stone Backsplash
Kitchen Additional Specs: Kitchen Island (Where Applicable) / Heavy Duty Hidden Hinges / Painted Feature Walls

Please note

All sizes and dimensions are nominal or based on approximate builder measurements. The builder reserves the right to make changes due to any changes in material, color, specifications, and features anytime without notice or obligation.