Sandpointe
SP28482A

Manufactured

Sandpointe
SP28482A

3D Tours & videos

No 3d Tour Available

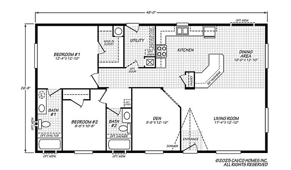
Floor plan

About this home

Sandpointe SP28482A – Beautifully crafted well proportioned home ideal for entertaining, features spacious open concept living room, state-of-the-art kitchen with large serving/snack/gathering bar, large den, large master bedroom with in suite bath, king size guest bedroom and well located second bath.
Share this home

Details

Built by Cavco Woodburn
Bedrooms 2
Bathrooms 2.00
Square feet 1280
Length 48' 0"
Width 28' 0"
Sections 2
Stories 1
Style Ranch

Specifications

Exterior Wall On Center: 16” On Center
Exterior Wall Studs: Sidewalls- 2 x 4
Floor Decking: Floor Decking- 4 x 8 x 19/32”, Tongue & Groove OSB
Floor Joists: Floor Joists- 2 x 6, 16” On Center
Roof Load: Roof Load- 20 Pound with Trusses 24” On Center
Side Wall Height: 96” Flat Ceiling
Insulation (Floors): R11
Insulation (Walls): R21
Insulation (Ceiling): R21
Front Door: Front Entry Door- 36” In-Swing
Rear Door: Rear Door- 32” In-Swing
Roof Pitch: Roof Pitch- 6/12
Shingles: Shingles- Limited Lifetime Waranty (factory choice)
Siding: LP Smartside Panels - Limited Warranty, Durable
Window Trim: Exterior Window Treatment- 4” Trim
Window Type: Windows- Low-E Vinyl Windows with Argon Gas
Exterior Lighting: White Light Fixture
Ceiling Texture: Ceiling Sheetrock Thickness- 1/2” High Density
Window Type: Windows- Low-E Vinyl Windows with Argon Gas
Electrical Service: 200AMP
Water Heater: 30 Gallon Electric
Bathroom Cabinets: Raised Panel Doors, 36” High Lavy
Bathroom Sink: Acrylic
Bathroom Lighting: Ceiling Mounted Light
Bathroom Flooring: Vinyl Flooring
Bathroom Faucets: Chrome, Dual Handle
Bathroom Backsplash: 4” Laminate
Bathroom Shower: 60” Acrylic with 3-Piece Surround
Kitchen Sink: 6” Deep Stainless Steel
Kitchen Refrigerator: 16 CF Frost Free, Black (or larger, factory choice)
Kitchen Range Type: Electric, Black
Kitchen Lighting: Ceiling Mounted Light
Kitchen Flooring: Vinyl Flooring
Kitchen Faucets: Chrome Dual Handle
Kitchen Cabinetry: Kitchen Overhead Cabinets- 30” Raised Panel Doors
Kitchen Backsplash: 4” Laminate

Please note

All sizes and dimensions are nominal or based on approximate builder measurements. The builder reserves the right to make changes due to any changes in material, color, specifications, and features anytime without notice or obligation.