Millcreek Series
N336

Manufactured

Millcreek Series
N336

3D Tours & videos

No 3d Tour Available

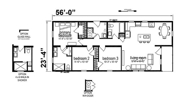
Floor plan

About this home

The Millcreek / N336 by Skyline Homes is a beautiful and spacious 1306 sq. ft. manufactured home with 3 bedrooms, and 2 bathrooms, perfect for those seeking a comfortable living. With its open-concept floor plan, modern amenities, and luxurious finishes, this home is sure to impress. The N336 model offers plenty of living space and is perfect for families or those who love to entertain.

This home is offered by

Share this home

Details

Built by Skyline Homes
Bedrooms 3
Bathrooms 2.00
Square feet 1306
Length 56' 0"
Width 23' 4"
Sections 2
Stories 1
Style Ranch

Specifications

Additional Specs: Detachable Hitch
Exterior Wall Studs: 2x4 Exterior Walls
Floor Decking: OSB Tongue & Groove Floor Decking
Floor Joists: 2x6 Floor Joist - 19.2” O.C.
Interior Wall Studs: 2x3 Interior Walls
Other: Millcreek - 6 Models: ENERGY STAR® Certified / 50-Gallon Electric Water Heater / Insulation R-40-21-33 / 2x6 Exterior Walls
Roof Load: 30# Roof Load
Side Wall Height: 8’ Sidewall
Insulation Specs: Insulation R-33-11-14
Eaves: 6” Eaves Sidewalls / 12” Eaves Front & Rear
Water Lines: Residential PEX Water Lines
Front Door: 36” 6-Panel Fiberglass Front Door w/ Deadbolts
Rear Door: 36” 6-Panel Fiberglass Rear Door w/ Deadbolts
Roof Pitch: Nominal 3/12 Roof Pitch
Shingles: 30-Year Class “A” Fire Rated Shingles
Siding: Fiber Cement Siding
Window Type: Low-E Insulated Vinyl Windows
Exterior Lighting: Exterior Light at all Exterior Doors
Exterior Outlets: Exterior Receptacle w/ GFI Breaker
Ceiling Texture: Flat Ceilings Throughout
Ceiling Type Or Grade: Ceiling Crown 2 1⁄4” Flat
Door Carpet Type: Linoleum Entry
Safety Alarms: Smoke Detectors w/ CO
Window Type: White Wood Window Casing & Trim
Molding: 2 1⁄4” Base Molding
Interior Doors: 2-Panel Doors / Round Passage Doorknobs
Interior Lighting: Recessed Lights Throughout (Except Bedrooms & Living Room)
Additional Specs: Toggle Switches & Duplex Receptacles
Carpet Type Or Grade: Shaw® Edgewater Carpet w/ Rebond Pad / Tape & Texture w/ Square Corners Throughout
Electrical Service: 200 Amp Service
Furnace: Forced Air Electric Furnace
Heat Duct Registers: Perimeter Heat w/ Toe Kick Registers / Insulated Fiberglass Heat Ducts
Thermostat: WI-FI Thermostat
Utility Cabinets: Wire Shelving above Washer & Dryer
Washer Dryer Hook Up: Plumbing for Washer & Wire for Dryer
Water Heater: 30-Gallon Electric Water Heater w/ Dual Element
Water Shut Off Valves: Whole House Water Shutoff at Main
Bathroom Cabinets: Shaker Style Cabinet Doors / Hardwood Cabinet w/ Hidden Hinges / Full Extension Drawer System w/ Ball Bearing Guides
Bathroom Sink: China Lavy Sinks
Bathroom Faucets: Metal Single-Lever Faucets
Bathroom Fans: Power Vent Fan w/ Light
Bathroom Backsplash: 4” Formica® Backsplash w/ Formica® Edge
Bathroom Shower: 60” 1-Piece Fiberglass Tub/Showers Combo
Bathroom Toilet Type: Round Commode w/ Chrome Shutoff
Bathroom Mirror: 24”x36” Mirror
Kitchen Sink: 8" Deep Stainless-Steel Sink
Kitchen Refrigerator: 18 Cu. Ft. Frost Free Refrigerator
Kitchen Range Type: 30" Deluxe Range w/ Glass, Clock & Timer
Kitchen Range Hood: 30” Vented Range Hood
Kitchen Faucets: Single-Lever Kitchen Faucet
Kitchen Drawer Type: Full Extension Drawer System w/ Ball Bearing Guides
Kitchen Cabinetry: CS84 Cabinet Construction / Shaker Style Cabinet Doors / Hardwood Cabinets w/ Hidden Hinges / Adjustable Overhead Shelves / Fixed Shelf in Base Cabinet / Shelf Over Refer
Kitchen Backsplash: 4” Formica® Backsplash w/ Formica® Edge

Please note

All sizes and dimensions are nominal or based on approximate builder measurements. The builder reserves the right to make changes due to any changes in material, color, specifications, and features anytime without notice or obligation.