Cedar Cove
D601

Manufactured

Cedar Cove
D601

3D Tours & videos

No 3d Tour Available

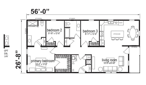
Floor plan

About this home

The Cedar Cove / D601 built by Skyline Homes is a charming 3 bedroom, 2 bathroom home with 1,422 square feet of living space. This home boasts modern amenities, an open floor plan, and a spacious master suite, making it the perfect choice for comfortable and stylish living. With its contemporary design, ample storage space, and energy-efficient features, the D601 model is a great option for anyone looking for a functional and stylish manufactured home.

This home is offered by

Share this home

Details

Built by Skyline Homes
Bedrooms 3
Bathrooms 2.00
Square feet 1422
Length 56' 0"
Width 26' 8"
Sections 2
Stories 1
Style Ranch

Specifications

Exterior Wall Studs: 2x6 Exterior Walls
Floor Joists: 2x6 Floor Joists (20,24,28 wide) / 2x8 Floor Joists (32 wide)
Roof Load: 30 lb. Roof Load
Side Wall Height: 8’ Sidewall
Insulation (Floors): R-22
Insulation (Walls): R-19
Insulation (Roof): R-28
Shutters: Shutters Front & Door Side
Exterior Sheathing: Standard
Door Locks: Deadbolts Front & Rear Door
Front Door: 36” Residential 6-Light Fiberglass Front Door
Rear Door: 36” Residential 9-Light Fiberglass Rear Door
Roof Pitch: 3/12 Nominal Roof Pitch
Shingles: 25-Year 3-Tab Shingles
Siding: Dutch Lap Vinyl Siding
Window Type: Vinyl Low-E Windows (no grids)
Ceiling Texture: Textured Ceiling w/ Stippled Finish
Ceiling Type Or Grade: Flat Ceiling
Safety Alarms: Smoke Detector w/ Battery Backup
Wall Finish: VOG Interior Walls
Interior Doors: 36” 3-Panel Interior Doors (where available) / Mortised Hinges (3 per door)
Interior Lighting: 4’’ LED Can Lights Throughout
Window Decor: 1’’ Mini Blinds
Interior Flooring: Live Wire II Carpet in Bedrooms / Linoleum Throughout (except bedrooms)
Cabinetry & Counters: High Pressure Laminate Backsplash and Countertops Throughout / Lined Base and Overhead Cabinets / Adjustable Shelving in Base and Overheads
Carpet Type Or Grade: 3/8” Carpet Pad
Electrical Service: 200 Amp Service
Furnace: Electric Furnace w/ Metal Door
Heat Duct Registers: Perimeter Heating w/ Insulated Duct Board / Toe Kick Registers in Kitchen & Bathrooms
Shut Off Valves Throughout: Whole House Water Shutoff at Water Heater
Thermostat: Digital Thermostat
Utility Cabinets: Vented Wire Shelves in Closets / Vented Wire Shelf at Washer/Dryer
Washer Dryer Hook Up: Wire For Washer/Dryer
Washer Dryer Plumb Wire: Plumbing for Washer / Dryer Duct
Water Heater: 40-Gallon Electric Water Heater
Water Shut Off Valves: Water Shutoff for all Fixtures
Plumbing/Electrical: PEX Waterlines
Bathroom Cabinets: Flat Panel Hardwood Shaker Cabinet Doors / Solid Wood Stiles & Rails / 6” Bar Cabinet Pulls
Bathroom Sink: China Vanity Bowl
Bathroom Faucets: Dual Handle Vanity Faucet
Bathroom Fans: Power Vent Fan/Light Combo
Bathroom Additional Specs: Shower Curtain & Rod / Privacy Locks
Bathroom Shower: 1-Piece 60” Fiberglass Tub/Shower in Baths
Bathroom Toilet Type: Round China Toilets
Bathroom Mirror: Decorative Mirror / Wood Frame
Kitchen Sink: 8” Deep Stainless-Steel Sink
Kitchen Refrigerator: 18 Cu.Ft. Refrigerator
Kitchen Range Type: 30” Deluxe Electric Range w/ Power Rangehood
Kitchen Faucets: 8” Chrome Pull Down Faucet
Kitchen Drawer Type: Drawer Bank in Kitchen
Kitchen Cabinetry: Flat Panel Hardwood Shaker Cabinet Doors / Solid Wood Cabinet Stiles and Rails / 6” Bar Cabinet Pulls / Cabinet Above Refrigerator
Kitchen Additional Specs: Plumbing for Ice Maker / 20 Amp USB Outlet in Kitchen / (1) Exterior GFI

Please note

All sizes and dimensions are nominal or based on approximate builder measurements. The builder reserves the right to make changes due to any changes in material, color, specifications, and features anytime without notice or obligation.