Bay Springs
C825

Manufactured

Bay Springs
C825

3D Tours & videos

No 3d Tour Available

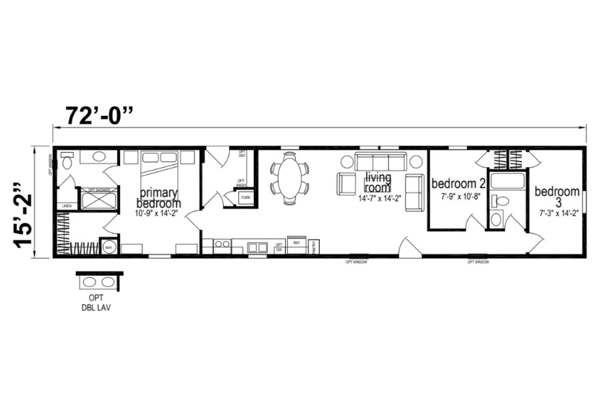
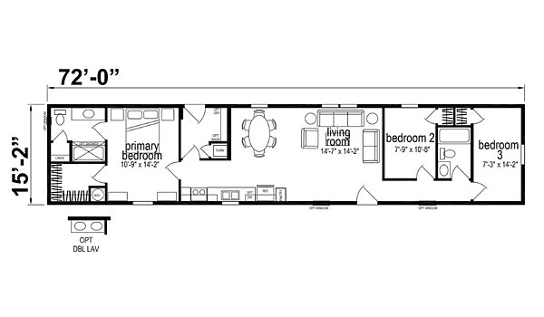
Floor plan

About this home

The Bay Springs / C825 built by Skyline Homes is a manufactured home featuring 1092 square feet of thoughtfully designed space with 3 bedrooms and 2 bathrooms. Its open living area creates an inviting atmosphere, while the kitchen offers modern convenience. The primary suite provides a peaceful retreat with its own private bathroom. Two additional bedrooms add flexibility for family, guests, or a home office. The C825 is a perfect blend of comfort and practicality.
Share this home

Details

Built by Skyline Homes
Bedrooms 3
Bathrooms 2.00
Square feet 1092
Length 72' 0"
Width 15' 2"
Sections 1
Stories 1
Style Ranch

Specifications

Additional Specs: Ice Guard
Exterior Wall Studs: 2x6 Exterior Walls
Floor Joists: 2x6 Floor Joists (10’, 12’, 14’ wide) / 2x8 Floor Joists (16’ wide)
Roof Load: 30 lb. Roof Load
Side Wall Height: 8’ Sidewall
Insulation (Floors): R-22 Floor Insulation
Insulation (Walls): R-19 Wall Insulation
Insulation (Roof): R-28 Roof Insulation
Shutters: Shutters Front & Side Door
Water Lines: PEX Waterlines
Exterior Sheathing: Standard
Door Locks: Deadbolts Front & Rear Door
Front Door: 36” Residential 6-Light Fiberglass Front Door
Rear Door: 36” Residential 9-Light Fiberglass Rear Door
Roof Pitch: 3/12 Nominal Roof Pitch
Shingles: 25-Year 3-Tab Shingles
Siding: Dutch Lap Vinyl Siding
Window Type: Vinyl Low-E Windows (no grids)
Ceiling Texture: Textured Ceiling w/ Stippled Finish
Ceiling Type Or Grade: Flat Ceiling
Safety Alarms: Smoke Detector w/ Battery Backup
Wall Finish: VOG Interior Walls
Interior Doors: 36” 3-Panel Interior Doors (where available) / Mortised Hinges (3 per door)
Interior Lighting: 4” LED Can Lights Throughout / Night Light in Hallway
Window Decor: 1” Mini Blinds
Cabinetry & Counters: High Pressure Laminate Backsplash & Countertops Throughout / Lined Base & Overhead Cabinets / Adjustable Shelving in Base & Overheads
Carpet Type Or Grade: Live Wire II Carpet in Bedrooms / Linoleum Throughout (except bedrooms) / 3/8” Carpet Pad
Cabinet System: Vented Wire Shelves in Closets / Vented Wire Shelf at Washer/Dryer
Electrical Service: 200 Amp Service
Furnace: Electric Furnace w/ Metal Door
Other: Toe Kick Registers in Kitchen & Bathrooms
Shut Off Valves Throughout: Whole House Water Shutoff at Water Heater
Thermostat: Digital Thermostat
Washer Dryer Hook Up: Wire for Washer/Dryer
Washer Dryer Plumb Wire: Plumbing for Washer / Dryer Duct
Water Heater: 40-Gallon Electric Water Heater
Water Shut Off Valves: Water Shutoff at All Fixtures
Bathroom Sink: China Vanity Bowl
Bathroom Faucets: Dual-Handle Vanity Faucet
Bathroom Fans: Power Vent Fan/Light Combo
Bathroom Additional Specs: Privacy Locks / Shower Curtain & Rod
Bathroom Shower: 1-Piece 60” Fiberglass Tub/Shower in Baths
Bathroom Toilet Type: Round China Toilets
Bathroom Mirror: Decorative Mirror w/ Wood Frame
Kitchen Sink: 8” Deep Stainless Steel Sink
Kitchen Refrigerator: 18 Cu.Ft. Refrigerator
Kitchen Range Type: 30” Deluxe Electric Range w/ Power Rangehood
Kitchen Faucets: 8” Chrome Pull-Down Faucet
Kitchen Drawer Type: Drawer Bank in Kitchen
Kitchen Cabinetry: Flat Panel Hardwood Shaker Cabinet Doors / Solid Wood Cabinet Stiles & Rails / 6” Bar Cabinet Pulls / Cabinet Above Refrigerator
Kitchen Additional Specs: Plumbing for Ice Maker / 20 Amp USB Outlet in Kitchen / (1) Exterior GFI

Please note

All sizes and dimensions are nominal or based on approximate builder measurements. The builder reserves the right to make changes due to any changes in material, color, specifications, and features anytime without notice or obligation.