Ironclad
2856-08

Manufactured

Ironclad
2856-08

3D Tours & videos

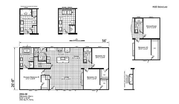
Floor plan

About this home

The Ironclad / 2856-08 built by Champion Homes is a well-designed manufactured home offering 1493 square feet of thoughtfully arranged space. Featuring 3 bedrooms and 2 bathrooms, this home boasts a spacious living area that flows into a modern kitchen with ample storage and a dining area perfect for gatherings. The primary suite offers a private retreat, while the additional bedrooms provide flexibility. The 2856-08 delivers both comfort and style, making it an excellent choice for any homeowner.

This home is offered by

Share this home

Details

Built by Champion Homes
Bedrooms 3
Bathrooms 2.00
Square feet 1493
Length 56' 0"
Width 26' 8"
Sections 2
Stories 1
Style Ranch

Specifications

No specification data available

Please note

All sizes and dimensions are nominal or based on approximate builder measurements. The builder reserves the right to make changes due to any changes in material, color, specifications, and features anytime without notice or obligation.