Platinum
Gallatin

Modular

Platinum
Gallatin

3D Tours & videos

No 3d Tour Available

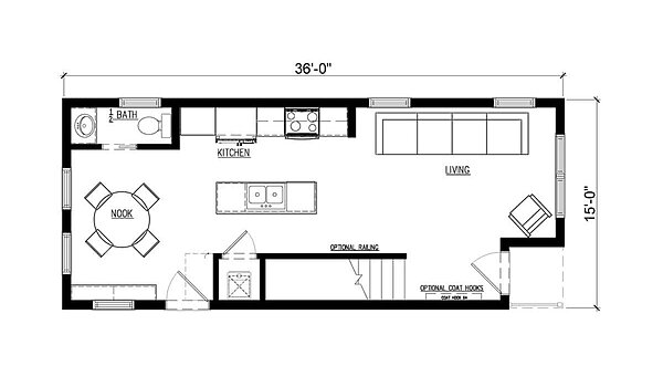
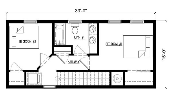
Floor plan

About this home

The Gallatin plan offers a space-saving design that leaves a big impression. This home includes all the amenities of a larger plan and the use of space is top-notch! This floor plan is also ideal for a narrow lot or potential guest house.
Share this home

Details

Built by Northstar Systembuilt
Bedrooms 2
Bathrooms 1.00
Square feet 1080
Length 36' 0"
Width 15' 0"
Sections 1
Stories 2
Style Ranch

Specifications

Additional Specs: 7/16” OSB on interior side of longitudinal walls and mating walls, stapled and glued / 7/16” OSB exterior sheathing for added strength
Exterior Wall On Center: 16” on center
Exterior Wall Studs: 2 x 6 studs
Floor Decking: 3/4" Tongue and Groove OSB Sub-Flooring (Glued and Nailed)
Floor Joists: 2 x 10 Joists at 16” on center
Interior Wall On Center: 16” on center
Interior Wall Studs: 2 x 4 Studs
Other: 30# Synthetic Underlayment
Roof Truss: 60# or 40# Load Engineered Trusses at 24” on center
Insulation (Floors): R-21
Insulation (Walls): R-21
Insulation (Ceiling): R-50
Front Door: Bayerbuilt exterior doors
Shingles: Timberline Architectural Asphalt Shingle
Siding: Mainstreet Double 4 Vinyl Siding .042” thickness
Window Type: Vector Low E Single hung windows built to meet Energy Star® standards for superior performance
Exterior Outlets: Exterior GFCI Outlet
Baseboards: 40oz Plush Shaw Carpeting on 8lb pad in living room, hallways and bedrooms
Ceiling Type Or Grade: 8’ flat ceiling height (Flat/Vaulted combination for Spicer, Baxter, and Glenwood)
Safety Alarms: Smoke and Carbon Dioxide Detectors per code
Wall Finish: Walls and ceilings coated with an orange peel finish
Interior Doors: Bayerbuilt solid interior doors pre-finished using a water-based stain with a water-based UV seal and top coat for a durable finish
Additional Specs: Modern Cordless Door Chime at front door / TV/Phone jacks strategically placed in five locations throughout the home, rough-in only with pull wires
Electrical Service: 200 Amp, 40 Space, Electrical Service panel
Furnace: Gas WH & Furnace with Crawlspace Plan Option
Utility Cabinets: Full Access cabinetry throughout / Full Overlay door design / Flat center panel cabinet doors in Modern Farmhouse and Contemporary packages, raised center panel in Rustic Package
Bathroom Lighting: LED down light over tub/shower and kitchen sink
Bathroom Flooring: Congoleum LuxFlor Vinyl Flooring
Bathroom Fans: Bath fan with LED Light, 80 CFM 1.5 Sones, Energy Star Certified
Bathroom Shower: One Piece Fiberglass Tub/Shower Unit
Bathroom Toilet Type: China Lavatory 1.6 Gallon Water Efficient Toilets / Tall Elongated toilets to Master Bath
Kitchen Sink: 8” Deep Two Bowl Stainless Steel Sink
Kitchen Flooring: Congoleum LuxFlor Vinyl Flooring
Kitchen Faucets: Moen Single Lever Chrome Gooseneck Faucet
Kitchen Drawer Type: Drawer System –Double sided metal box full extension soft close hardware
Kitchen Countertops: High Definition Laminate Countertop
Kitchen Backsplash: Preformed 3” Backsplash

Please note

All sizes and dimensions are nominal or based on approximate builder measurements. The builder reserves the right to make changes due to any changes in material, color, specifications, and features anytime without notice or obligation.