Sapphire Series
28684A

Manufactured

Sapphire Series
28684A

3D Tours & videos

Floor plan

About this home

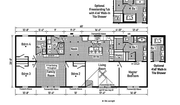
The Sapphire Series / 28684A built by Cavco Dorchester offers spacious living and modern comfort in a beautifully designed layout. With 2,040 square feet, 4 bedrooms, and 2 bathrooms, The 28684A gives your family room to grow and gather. The open kitchen with large island and walk-through pantry flows into a bright nook and inviting living room, creating the perfect space for everyday life. A private master suite sits apart from three additional bedrooms and a full bath. The 28684A blends space, style, and function into one impressive home.

This home is offered by

Share this home

Details

Built by Cavco Dorchester
Bedrooms 4
Bathrooms 2.00
Square feet 2040
Length 68' 0"
Width 28' 0"
Sections 2
Stories 1
Style Ranch

Specifications

No specification data available

Please note

All sizes and dimensions are nominal or based on approximate builder measurements. The builder reserves the right to make changes due to any changes in material, color, specifications, and features anytime without notice or obligation.