Westlake Retreats
16642B

Manufactured

Westlake Retreats
16642B

3D Tours & videos

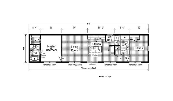
Floor plan

About this home

The Westlake Retreats / 16642B built by Cavco Dorchester is a bright and welcoming home that makes the most of its 960 square feet. This 2 bedroom, 2 bathroom layout offers a private primary suite with its own bath on one end and a second bedroom and bath on the other for added comfort. The center of the home features an open living room and kitchen with a handy pantry and easy flow for daily life. With smart design and cozy spaces, The 16642B is a charming home that feels just right from the moment you walk in.

This home is offered by

Share this home

Details

Built by Cavco Dorchester
Bedrooms 2
Bathrooms 2.00
Square feet 960
Length 64' 0"
Width 16' 0"
Sections 1
Stories 1
Style Ranch

Specifications

Exterior Wall On Center: 16" on Center
Exterior Wall Studs: 2x6
Floor Decking: Transverse Floor System on 16” Center / 3/4” OSB Decking
Floor Joists: 2x6 on 14 & 28 Wide / 2x8 on 16 & 32 Wide
Roof Load: 30#
Roof Decking: O.S.B. Wall & Roof Sheathing Fixed Roof / Shed Roof
Insulation (Floors): R-11 Fiberglass Insulation
Insulation (Walls): R-19 Fiberglass Insulation
Insulation (Ceiling): R-30 Avg. Blown Insulation
Eaves: 12” Overhangs and Eaves (Ranch) / 4” Overhangs and 12” Eaves (Single)
Front Door: 30x68 Fiberglass 6-Panel Front / Lineals Front Door Side / Deadbolt Keyed Alike Locksets
Rear Door: 30x68 Fiberglass 6-Panel Rear Door w/ Deadbolt Keyed Alike Locksets
Shingles: 3-Tab Shingles
Siding: Vertical Siding
Window Type: Vinyl Insulated Windows with Low-E Glass / Transom Windows
Exterior Lighting: Black Gatsby Light at Front and Rear Door
Exterior Outlets: GFI-Protected Exterior Receptacle at Each Door
Ceiling Type Or Grade: 8’-0” Cathedral Ceiling
Safety Alarms: Smoke Detectors with Battery Back-Up
Window Treatment: 1” Mini Blinds Throughout / Window Valances
Window Type: Flat 2 1/4” Window and Door Casing / Flat 3 1/2” Baseboards
Molding: White Painted Mouldings Throughout
Wall Finish: Primed Drywall Throughout Orange Peel Finish
Interior Doors: 2-Panel White Painted Craftsman Interior Doors / Pre-Hung Doors with Mortise Hinges / Metal Interior Passage Sets
Interior Lighting: Recessed LED Lights
Interior Flooring: Shaw Vinyl Floor Coverings
Cabinetry & Counters: Wire Shelving in Closets
Additional Specs: Switched Light in All Walk-In Closets
Carpet Type Or Grade: Take Away Shaw Carpet with ShawGuard Carpet Protector / Rebond Carpet Pad with Tackstrip Carpet Installation
Additional Specs: One Exterior Water Faucet (Frost Free) / Copper Wiring Throughout
Electrical Service: 100 AMP Electrical Service
Furnace: Gas Furnace
Heat Duct Registers: Ridge Vent Roof Ventilation System / Ice Shield
Shut Off Valves Throughout: Water Shut Offs Throughout
Thermostat: 5-Wire Thermostat
Washer Dryer Hook Up: Wire and Vent for Dryer
Washer Dryer Plumb Wire: Plumb and Wire for Washer
Water Heater: 30 Gallon Electric Water Heater with Pan
Water Shut Off Valves: Main Water Shut-Off
Bathroom Cabinets: 36” High Vanities
Bathroom Sink: Square China Sinks with Overflow and Pop-Up Drain
Bathroom Flooring: Shaw Vinyl Floor Coverings
Bathroom Countertops: Laminate Countertops with Crescent Edge
Bathroom Faucets: Empire Brushed Nickel Faucets / Anti-Scald Valves on Showers and Tubs
Bathroom Backsplash: 4” Laminate Backsplash
Bathroom Shower: 60” Fiberglass Tub/Showers Tub/Shower Curtain and Curved Rod
Bathroom Toilet Type: Dual Flush Elonated Hi-Rise Toilets / China Stool, Tank, and Lid
Bathroom Mirror: Bevel Edge Mirrors
Kitchen Sink: Stainless Steel Sink 33x22x8
Kitchen Refrigerator: 18 Cu. Ft. Black Frost-Free Refrigerator w/Top Freezer
Kitchen Range Type: 30” Black Free-Standing Gas Range
Kitchen Range Hood: Power Range Hood with Fan and Light
Kitchen Other: One USB Receptacle
Kitchen Lighting: Pendant Dining Room Light
Kitchen Flooring: Shaw Vinyl Floor Coverings
Kitchen Faucets: Empire Brushed Nickel High Rise Faucet
Kitchen Drawer Type: 5-Piece Drawer Fronts / 100# Undermount Soft Close Drawer Guides
Kitchen Countertops: Laminate Countertops with Crescent Edge
Kitchen Cabinetry: KCMA Certified Cabinets / Hardwood Wrapped Mission Cabinet Doors with Full Overlay / Hardwood Wrapped Cabinet Face Frames and Stiles / Brushed Nickel Cabinet Pulls Hardware / Soft Close Hidden Cabinet Hinges / Base and Wall Cabinets with Adjustable Shelves
Kitchen Backsplash: 4” Laminate Backsplash

Please note

All sizes and dimensions are nominal or based on approximate builder measurements. The builder reserves the right to make changes due to any changes in material, color, specifications, and features anytime without notice or obligation.