Edge
14763C

Manufactured

Edge
14763C

3D Tours & videos

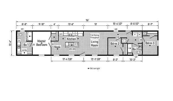
Floor plan

About this home

The Edge / 14763C built by Cavco Dorchester is a smart and stylish home that offers 1,013 square feet of well planned space. This 3 bedroom, 2 bathroom layout features a private primary suite with its own bath on one end and two additional bedrooms with a second full bath on the other. The center of the home opens to a bright living room, kitchen, and cozy nook that flow together with ease. With comfort, function, and charm, The 14763C is a home that fits your life beautifully.

This home is offered by

Share this home

Details

Built by Cavco Dorchester
Bedrooms 3
Bathrooms 2.00
Square feet 1013
Length 76' 0"
Width 14' 0"
Sections 1
Stories 1
Style Ranch

Specifications

Additional Specs: 82” Window Headers
Exterior Wall On Center: 16” Center
Exterior Wall Studs: 2x6 Exterior Walls
Floor Decking: 3/4” OSB Decking**
Floor Joists: Transverse Floor System on 16” Center / 2x6 Floor Joist on 14 and 28 Wide Models / 2x8 Floor Joists on 16 Wide Models
Roof Load: 30# Roof Load
Roof Decking: O.S.B. Roof & Sidewall Sheathing / Fixed Roof
Insulation (Floors): R-11 Fiberglass Insulation
Insulation (Walls): R-19 Fiberglass Insulation
Insulation (Ceiling): R-30 Avg. Blown Insulation
Eaves: 12” Overhangs and Eaves (Ranch) / 4” Overhangs and 12” Eaves (Single)
Additional Specs: Ridge Vent Roof Ventilation System / Ice Shield / Door w/ Deadbolt Keyed Alike Locksets / One Exterior Water Faucet (Frost Free)
Front Door: 30x68 Fiberglass 6-Panel / Lineals Front Door Side
Rear Door: 30x68 Fiberglass 6-Panel
Shingles: 3-Tab Shingles
Siding: Vinyl Dutch Lap Siding
Window Type: Vinyl Insulated Windows with Low-E Glass
Exterior Lighting: Black Light at Front and Rear Door
Exterior Outlets: GFI-Protected Exterior Receptacle at Each Exterior Door
Ceiling Type Or Grade: 8’-0” Flat Ceiling Orange Peel Finish
Window Treatment: Window Valances / 1” Mini Blinds Throughout
Window Type: Egress Windows in bedriooms
Wall Finish: Primed Drywall Throughout Orange Peel Finish
Interior Doors: 3-Panel Barnwood Shaker Interior Doors / Pre-Hung Doors with Mortise Hinges / Metal Interior Passage Sets
Interior Lighting: Recessed LED Lights / Switched Light in All Walk-In Closets
Cabinetry & Counters: Wire Shelving in Closets
Additional Specs: Barnwood Wrapped Mouldings Throughout
Carpet Type Or Grade: Take Away Shaw Carpet with ShawGuard Carpet Protector / Rebond Carpet Pad with Tackstrip Carpet Installation / Shaw No-Wax Vinyl Floor
Electrical Service: 100 AMP Electrical Service
Furnace: Gas Furnace
Other: Copper Wiring Throughout
Shut Off Valves Throughout: Water Shut Offs Throughout
Thermostat: 5-Wire Thermostat
Washer Dryer Hook Up: Wire and Vent for Dryer
Washer Dryer Plumb Wire: Plumb and Wire for Washer
Water Heater: 30 Gallon Electric Water Heater with Pan
Water Shut Off Valves: Main Water Shut-Off Valve at Utility
Bathroom Sink: Square China Sinks with Overflows and Pop-Up Drains
Bathroom Faucets: Empire Brushed Nickel Faucets
Bathroom Additional Specs: Anti-Scald Valves on Showers and Tubs
Bathroom Shower: 60” Fiberglass Tub/Showers / Tub/Shower Curtain and Curved Rod
Bathroom Toilet Type: Dual Flush Hi-Rise Toilets / China Stool, Tank, and Lid
Bathroom Mirror: Bevel Edge Mirrors
Kitchen Sink: Stainless Steel Sink 33x22x8
Kitchen Refrigerator: 18 Cu. Ft. Black Frost-Free Top/Bottom Refrigerator
Kitchen Range Type: 30” Black Free-Standing Gas Range
Kitchen Range Hood: Power Range Hood with Fan and Light
Kitchen Faucets: Empire Brushed Nickel High Rise Faucet
Kitchen Drawer Type: 100# Undermount Soft Close Drawer Guides
Kitchen Countertops: Laminate Countertops with Crescent Edge
Kitchen Cabinetry: KCMA Certified Cabinets / Staggered Overhead Cabinets / Barnwood Wrapped Mission Cabinet Doors with Full Overlay / Barnwood Wrapped Cabinet Face Frames and Stiles / Brushed Nickel Cabinet Pulls Hardware / Soft Close Hidden Cabinet Door Hinges / Base and Wall Cabinets with Adjustable Shelves
Kitchen Backsplash: 4” Laminate Backsplash
Kitchen Additional Specs: One USB Receptacle

Please note

All sizes and dimensions are nominal or based on approximate builder measurements. The builder reserves the right to make changes due to any changes in material, color, specifications, and features anytime without notice or obligation.