Cedar Canyon
Duplex 2106

ManufacturedMulti-Family

Cedar Canyon
Duplex 2106

3D Tours & videos

No 3d Tour Available

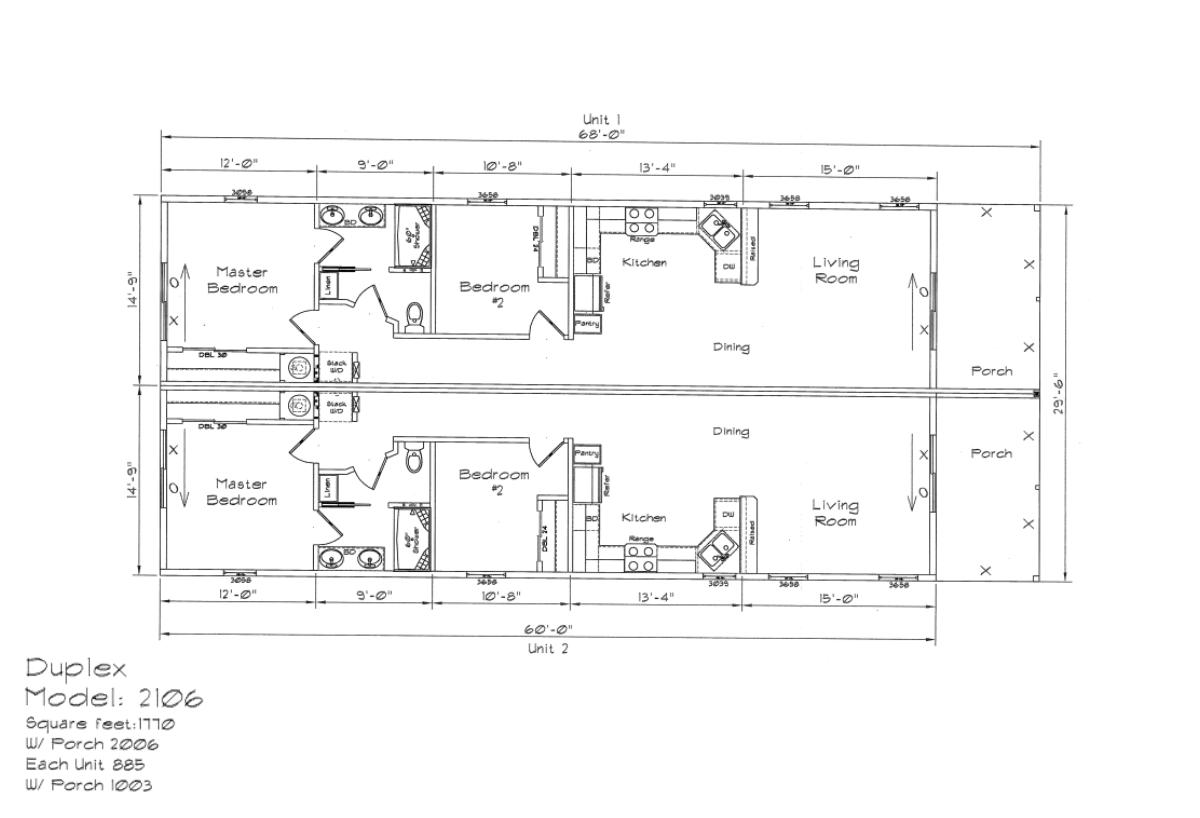
Floor plan

About this home

The Cedar Canyon / Duplex 2106 built by KIT Custom Homebuilders offers smart design and double the opportunity in one spacious layout. With 1,770 square feet, 4 bedrooms, and 2 bathrooms, The Duplex 2106 is perfect for extended family or rental income. Each side features a bright living room, open kitchen, dining area, and comfortable bedrooms that make daily life easy. Private entries and welcoming porches add charm and function. The Duplex 2106 delivers flexibility, value, and lasting comfort in a home built to fit your goals.
Share this home

Details

Built by KIT Custom Homebuilders
Bedrooms 4
Bathrooms 2.00
Square feet 1770
Length 68' 0"
Width 29' 6"
Sections 2
Stories 1
Style Ranch

Specifications

Ac Ready: Conduit From Panel Box for Air Ready/Heat Pump Ready
Additional Specs: OSB Ubder sheetrock at marriage lines
Custom Options: HUD: 4:12 Roof Pitch (40’ Wide Homes Only) - 5:12 Roof Pitch (All Models) / Modular: 5:12 Roof Pitch
Exterior Wall On Center: 16” O.C.
Exterior Wall Studs: 2x6 Exterior Walls
Floor Decking: Tongue and groove OSB
Floor Joists: HUD: 2x6 Floor Joists 16” O.C. on 19’-8”, 23’-8” & 26’8” Wide Homes - 2x8 Floor Joists 16” O.C. on 29’6” Wide Homes / Modular: 2x10 Floor Joists @ 16” O.C. w/2x10 Rim Rails
Interior Wall On Center: 24 inch
Interior Wall Studs: 2x4 Interior Walls
Other: HUD: Foundation Ready / Modular: Removeable Chassis/Frame
Roof Load: 30# Roof Load / Higher Roof Loads Available (45lb, 60lb, 90lb, 120lb & 150lb)
Side Wall Height: 90” Sidewall Height
Insulation (Floors): HUD: R - 33 / Modular: R - 30
Insulation (Walls): R - 21
Insulation (Ceiling): HUD: R - 40 / Modular: R - 50
Custom Options: Many custom options available (see retailer)
Dormer: Per plan see sales representative
Front Door: 36” Insulated Fiberglass Front Doors (Almond, Clay, or White)
Hose Bibs: Frost Free Faucet (Any Location Except End Walls)
Rear Door: 36” Insulated Fiberglass Rear Doors (Almond, Clay, or White)
Roof Pitch: HUD: 4:12 Roof Pitch w/14” Eaves on 26’8” Wide Homes - 3.31:12 Roof Pitch w/12” Eaves on 29’6” Wide Homes - 2.66:12 Roof Pitch w/14” Eaves on 40’ Wide Homes - 4:12 Roof Pitch w/8” Eaves on 19’8” Wide Homes - 4:12 Roof Pitch w/14” Eaves on 23’8” Wide Homes / Modular: 3:12 Roof Pitch w/12” Eaves
Shingles: Architectural Fiberglass Shingles
Siding: 50 Year Smart Panel Siding & Trim (Available Siding Options Include: Fibercement Lap & Montana Timber)
Window Trim: Window Trim Around All Windows / Window Shutters on Front Door Side
Window Type: Low E Vinyl Dual Glaze Windows (Almond, Clay, or White)
Endwall Eaves: 16-inch on both endwalls
Front Rear Eaves: 14 inch eaves (26'8 , 40', 23'8-inch homes) 12-inch eaves (29'6-inch Homes) 8-inch eaves ( 19' 8-inch Homes)
Exterior Outlets: HUD: Exterior Receptacle Near Rear Door / Modular: 2 Exterior GFI Receptacles
Vaulted Ceilings: Cathedral Ceilings Throughout
Window Treatment: White Metal Mini blinds
Interior Doors: White 30” 2-Panel Grand Arch Interior Passage Doors (w/Painted Trim) / Passage Doors on Wardrobes
Interior Corners: Radius Corners
Interior Walls: Textured Walls & Ceilings w/Radius Corners
Interior Lighting: Glass Light Fixtures w/Switched Bedroom Ceiling Lights / Recessed Can Lights in Walk-in Closets & Walk-In Pantries
Interior Paint: Choices Of Interior Paints—Sherwin Williams washable eggshell finish
Carpet Type Or Grade: HUD: Quality Carpeting in Living Room, Dining Room, Family Room, Activity Room, Hall, Bedrooms / Modular: 25 oz. FHA Carpeting in Living Room, Dining Room, Family Room, Hall, Bedrooms / 6# Rebond Carpet Pad
Additional Upgrades: Many upgrades available (see retailer for details)
Guest Bath Combo: 60 inch 1 piece fiberglass tub and showers
Electrical Service: All Electric Home w/200 AMP Service
Furnace: Electric
Heat Duct Registers: Certified Heat Ducts With In-Floor Crossovers
Shut Off Valves Throughout: Master plus individual at sinks and toilets
Water Heater: HUD: 40 Gallon Electric / Modular: 50 Gallon Electric
Water Shut Off Valves: Individual Water Shut-Offs @ Sinks & Toilets
Bathroom Cabinets: Bank of drawers in Master Bath
Bathroom Sink: China lavs
Bathroom Flooring: Upgrade Luxflor “LX” Vinyl Floor Covering
Bathroom Countertops: Décor Laminate Countertop & Edge
Bathroom Faucets: Price Pfister Dual Control Metal Faucets
Bathroom Additional Specs: Temperature & Balance Control Valves on Shower Divertor
Bathroom Backsplash: 6”Ceramic Tile Backsplash
Bathroom Custom Options: Deluxe Master Bathroom w/Dual Lavs, Roman Tub & Separate Shower (May Be Standard On Some Models Check Plan)
Bathroom Shower: 60” 1 Piece Fiberglass Tub/Showers
Bathroom Toilet Type: Elongated Toilets
Kitchen Sink: Stainless steel
Kitchen Refrigerator: 21’ Frost Free Refrigerator w/Ice Maker
Kitchen Range Type: 30” Electric Range
Kitchen Other: Drawer over door cabinet construction,
Kitchen Lighting: Dining Room Chandelier
Kitchen Flooring: Upgrade Luxflor “LX” Vinyl Floor Covering
Kitchen Faucets: Price Pfister Dual control
Kitchen Drawer Type: Bank of drawers
Kitchen Dishwasher: Frigidaire
Kitchen Custom Options: 31-inch Overhead cabinets w/adjustable shelves
Kitchen Countertops: Décor Laminate Countertop & Edge
Kitchen Cabinetry: Natural Wood Cabinets & Doors w/Overhead Cabinet Crown Molding Throughout
Kitchen Backsplash: 6” Ceramic Tile Backsplash
Kitchen Additional Specs: Hi-Lo Cabinet design w/crown molding / HUD: Frigidaire Appliances / Modular: White Frigidaire Appliances
Kitchen Window: Decorative window valances throughout

Please note

All sizes and dimensions are nominal or based on approximate builder measurements. The builder reserves the right to make changes due to any changes in material, color, specifications, and features anytime without notice or obligation.