Ramsey HUD
R5628-78

Manufactured

Ramsey HUD
R5628-78

3D Tours & videos

No 3d Tour Available

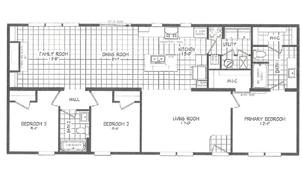
Floor plan

About this home

R5628-78
Share this home

Details

Built by Schult Homes
Bedrooms 3
Bathrooms 2.00
Square feet 1568
Length 56' 0"
Width 28' 0"
Sections 2
Stories 1
Style Ranch

Specifications

No specification data available

Please note

All sizes and dimensions are nominal or based on approximate builder measurements. The builder reserves the right to make changes due to any changes in material, color, specifications, and features anytime without notice or obligation.