Epic Journey
Cook 95CEJ28523AH

Manufactured

Epic Journey
Cook 95CEJ28523AH

3D Tours & videos

No 3d Tour Available

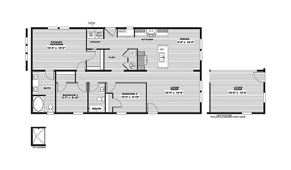
Floor plan

About this home

The Epic Journey / Cook 95CEJ28523AH built by Clayton Wakarusa brings modern comfort to life with 3 bedrooms, 2 bathrooms, and 1369 sq. ft. The Cook 95CEJ28523AH features a spacious living room, an open kitchen with an island, and a flexible bonus space for added versatility. The primary bedroom includes a private bath, while the secondary bedrooms sit near the hall bath. This inviting layout is designed for easy, everyday living.

This home is offered by

Share this home

Details

Built by Clayton Wakarusa
Bedrooms 3
Bathrooms 2.00
Square feet 1369
Length 52' 0"
Width 28' 0"
Sections 2
Stories 1
Style Ranch

Specifications

Additional Specs: Solid Steel I Beam with Full-Length Outriggers / Fully Vented Soffit & Ridge Vents
Exterior Wall Studs: 2×6 Exterior Walls
Floor Decking: Full OSB Wrap with House Wrap
Floor Joists: 16” On Center 2×6 Floor Joist
Side Wall Height: 8’ Sidewalls with Flat Interior Ceilings
Insulation (Floors): R-22/33
Insulation (Walls): R-21
Insulation (Ceiling): R-38
Wind Zone: Zone III Insulation Package
Additional Specs: Rip-Preventing Bottom Board / Choice of (3) Exterior Designs* / Solar Prep Conduit Drop
Dormer: Standard Dormer on Multi-Sections
Front Door: 36×80 Craftsman-Style In-Swing Front Door
Rear Door: 36×80 9-Lite In-Swing Rear Door
Window Type: Lux Argon Gas Low-E Thermo-Pane Windows
Exterior Lighting: Decorative Exterior Lantern Lights Front and Rear
Additional Specs: Porcelain Sinks Throughout / PEX Piping Throughout / Exterior Water Faucet on Rear
Ducting And Venting: Sealed Duct System
Furnace: Carrier® Electric High Efficiency SmartComfort® Furnace
Shut Off Valves Throughout: Whole House Water Shut-Offs
Thermostat: ecobee® Smart Thermostat
Utility Cabinets: DuraCraft® Laundry Room Shelves
Water Heater: Rheem® 30 AMP 40 Gallon Hybrid Heat Pump Water Heater
Water Shut Off Valves: Water Shut-Offs at Plumbing Fixtures
Bathroom Cabinets: Furniture-Style Vanity
Bathroom Sink: Double Lavs in Primary Baths
Bathroom Fans: ENERGY STAR® Power Vent Bath Fan – Both Baths
Bathroom Shower: 2”x60” One Piece Fiberglass Soaker Tub/Shower in Primary Baths / 30×60 One Piece Fiberglass Tub/Shower in Guest Bath
Bathroom Mirror: Cab Stile Mirror Trim
Kitchen Sink: Double Bowl 8” Deep Stainless-Steel Kitchen Sink
Kitchen Refrigerator: Side-by-Side Refrigerator with Water/Ice in Door
Kitchen Range Type: Samsung® Smooth-Top Range
Kitchen Range Hood: Stainless Steel Designer Rangehood
Kitchen Other: Kitchen Island Standard / Fully Cabinet/Wall Encased Refrigerator
Kitchen Faucets: Gooseneck Pfister® Kitchen Faucetwi th Pull Out Sprayer
Kitchen Drawer Type: Drawer Bank on Each Side of Range / Pot and Pan Drawers in Each Drawer Bank
Kitchen Dishwasher: Stainless Steel Dishwasher Standard
Interior Doors: 30” Raised Two-Panel Interior Doors / Full Double Metal Hinges on Interior Doors
Interior Lighting: LED Recessed Lighting Throughout / Switched Lights in Walk-In Closets
Interior Flooring: Upgraded Lux Linoleum Throughout
Cabinetry & Counters: 42” DuraCraft® Overhead Lined Cabinets / Picture Frame Style DuraCraft® Cabinet Doors
Additional Specs: Framed Décor Wall in Living Area / Coffee Bar Area in Some Models
Ceiling Fans: Whole House Ventilation Fan with Switch

Please note

All sizes and dimensions are nominal or based on approximate builder measurements. The builder reserves the right to make changes due to any changes in material, color, specifications, and features anytime without notice or obligation.