Keystone
16763D

Manufactured

Keystone
16763D

3D Tours & videos

No 3d Tour Available

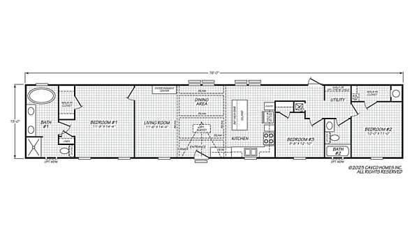
Floor plan

About this home

The 16763D built by Cavco Douglas is a 3-bedroom, 2-bath singlewide ranch home from the Keystone series, delivering 1,140 sq. ft. across a long, efficient 16×76 layout. The extended length gives each room space to breathe while keeping the floor plan open and easy to navigate. With solid Keystone series construction behind it, the 16763D is a dependable choice for buyers who want real value in a well-proportioned singlewide.
Share this home

Details

Built by Cavco Douglas
Bedrooms 3
Bathrooms 2.00
Square feet 1140
Length 76' 0"
Width 16' 0"
Sections 1
Stories 1
Style Ranch

Specifications

No specification data available

Please note

All sizes and dimensions are nominal or based on approximate builder measurements. The builder reserves the right to make changes due to any changes in material, color, specifications, and features anytime without notice or obligation.