Gulf Series
32663A

Manufactured

Gulf Series
32663A

3D Tours & videos

No 3d Tour Available

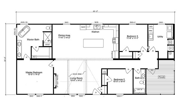
Floor plan

About this home

The Gulf Series / 32663A built by Cavco Moultrie offers a warm and welcoming layout with 3 bedrooms, 2 bathrooms, and 1806 square feet of bright, open space. The large kitchen island, roomy dining area, and inviting living room make it easy to enjoy everyday moments. The private master suite adds comfort, while the extra bedrooms sit close to a second bath. The 32663A brings relaxing, easy living together in one beautiful home.

This home is offered by

Share this home

Details

Built by Cavco Moultrie
Bedrooms 3
Bathrooms 2.00
Square feet 1806
Length 66' 0"
Width 32' 0"
Sections 2
Stories 1
Style Ranch

Specifications

No specification data available

Please note

All sizes and dimensions are nominal or based on approximate builder measurements. The builder reserves the right to make changes due to any changes in material, color, specifications, and features anytime without notice or obligation.