MiYO
Glimpse 46MYO28523AH

Manufactured

MiYO
Glimpse 46MYO28523AH

3D Tours & videos

No 3d Tour Available

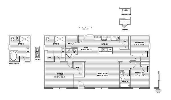
Floor plan

About this home

The MiYO / Glimpse 46MYO28523AH built by Giles is a cheerful and well-planned home that makes great use of space. With 1,370 square feet, this layout offers 3 bedrooms and 2 bathrooms designed for easy daily living. The living room sits at the heart of the home and flows into the kitchen and dining area, creating a welcoming spot to gather. A private primary bedroom with its own bath adds comfort, while two additional bedrooms offer flexible space for family, guests, or hobbies. Smart storage and a smooth layout keep everything feeling open and bright. The Glimpse 46MYO28523AH is a wonderful blend of comfort, function, and everyday style.
Share this home

Details

Built by Giles
Bedrooms 3
Bathrooms 2.00
Square feet 1370
Length 52' 0"
Width 28' 0"
Sections 2
Stories 1
Style Ranch

Specifications

No specification data available

Please note

All sizes and dimensions are nominal or based on approximate builder measurements. The builder reserves the right to make changes due to any changes in material, color, specifications, and features anytime without notice or obligation.