Ironclad
2848-09

Manufactured

Ironclad
2848-09

3D Tours & videos

No 3d Tour Available

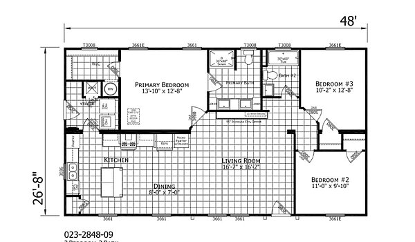
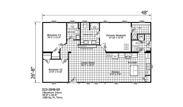
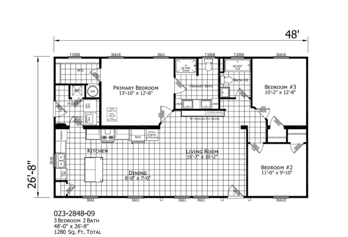
Floor plan

About this home

The Ironclad / 2848-09 built by Champion Homes is a spacious and welcoming home designed for comfort and everyday living. With 1,280 square feet, 3 bedrooms, and 2 bathrooms, The 2848-09 offers a layout that feels open and inviting. The large living room flows easily into the dining area and kitchen, creating a central space perfect for relaxing or gathering with family and friends. The private primary bedroom includes its own bath and walk-in closet, while two additional bedrooms add flexibility. The 2848-09 blends smart design, comfort, and style into a home built for modern living.
Share this home

Details

Built by Champion Homes
Bedrooms 3
Bathrooms 2.00
Square feet 1280
Length 48' 0"
Width 26' 8"
Sections 2
Stories 1
Style Ranch

Specifications

No specification data available

Please note

All sizes and dimensions are nominal or based on approximate builder measurements. The builder reserves the right to make changes due to any changes in material, color, specifications, and features anytime without notice or obligation.