Lake Manor
1466H32P01

Manufactured

Lake Manor
1466H32P01

3D Tours & videos

No 3d Tour Available

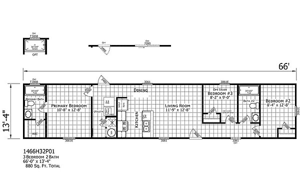
Floor plan

About this home

The Lake Manor / 1466H32P01 built by Champion Homes is a stylish home that offers comfort, space, and smart design. With 880 square feet, 3 bedrooms, and 2 bathrooms, The 1466H32P01 is perfect for families or anyone needing extra room. The kitchen sits at the center of the home and opens to the dining area and living room, creating a bright space for everyday living. The private primary bedroom features its own bath and walk-in closet, while two additional bedrooms share a second bath. The 1466H32P01 delivers practical living with a warm, welcoming feel.

This home is offered by

Share this home

Details

Built by Champion Homes
Bedrooms 3
Bathrooms 2.00
Square feet 880
Length 66' 0"
Width 13' 4"
Sections 1
Stories 1
Style Ranch

Specifications

No specification data available

Please note

All sizes and dimensions are nominal or based on approximate builder measurements. The builder reserves the right to make changes due to any changes in material, color, specifications, and features anytime without notice or obligation.