Lake Manor
1476H32P01

Manufactured

Lake Manor
1476H32P01

3D Tours & videos

No 3d Tour Available

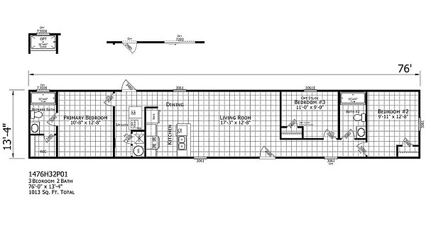
Floor plan

About this home

The Lake Manor / 1476H32P01 built by Champion Homes is a spacious and inviting home designed for comfortable living. With 880 square feet, 3 bedrooms, and 2 bathrooms, The 1476H32P01 offers a layout that makes everyday life easy. The kitchen sits at the center of the home and flows into the dining area and large living room, creating a bright space for relaxing or entertaining. The private primary bedroom features its own bath and walk-in closet, while two additional bedrooms share a second bath. The 1476H32P01 brings together smart design, comfort, and great everyday livability.

This home is offered by

Share this home

Details

Built by Champion Homes
Bedrooms 3
Bathrooms 2.00
Square feet 1013
Length 76' 0"
Width 13' 4"
Sections 1
Stories 1
Style Ranch

Specifications

No specification data available

Please note

All sizes and dimensions are nominal or based on approximate builder measurements. The builder reserves the right to make changes due to any changes in material, color, specifications, and features anytime without notice or obligation.