Lake Manor
1476H42P01

Manufactured

Lake Manor
1476H42P01

3D Tours & videos

No 3d Tour Available

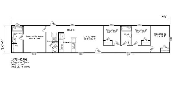
Floor plan

About this home

The Lake Manor / 1476H42P01 built by Champion Homes is a spacious home designed for comfort and flexibility. With 1,013 square feet, 4 bedrooms, and 2 bathrooms, The 1476H42P01 provides plenty of room for families or guests. The kitchen sits at the center of the home and flows into the dining area and living room, creating a bright and open space for everyday living. The private primary bedroom features its own bath and walk-in closet, while three additional bedrooms share a second bath. The 1476H42P01 offers smart design, generous space, and a welcoming place to call home.
Share this home

Details

Built by Champion Homes
Bedrooms 4
Bathrooms 2.00
Square feet 1013
Length 76' 0"
Width 13' 4"
Sections 2
Stories 1
Style Ranch

Specifications

No specification data available

Please note

All sizes and dimensions are nominal or based on approximate builder measurements. The builder reserves the right to make changes due to any changes in material, color, specifications, and features anytime without notice or obligation.