Lake Manor
1660H32P05

Manufactured

Lake Manor
1660H32P05

3D Tours & videos

No 3d Tour Available

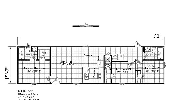
Floor plan

About this home

The Lake Manor / 1660H32P05 built by Champion Homes is a well-designed home that offers comfort, space, and everyday practicality. With 910 square feet, 3 bedrooms, and 2 bathrooms, The 1660H32P05 provides a layout that works well for families or guests. The kitchen sits at the heart of the home and connects to the dining area and spacious living room, creating a bright place to gather and relax. The private primary bedroom features its own bath and walk-in closet, while two additional bedrooms share a second bath. The 1660H32P05 brings together smart design, comfort, and inviting living space.

This home is offered by

Share this home

Details

Built by Champion Homes
Bedrooms 3
Bathrooms 2.00
Square feet 910
Length 60' 0"
Width 15' 2"
Sections 1
Stories 1
Style Ranch

Specifications

No specification data available

Please note

All sizes and dimensions are nominal or based on approximate builder measurements. The builder reserves the right to make changes due to any changes in material, color, specifications, and features anytime without notice or obligation.