Lake Manor
1666H32P01

Manufactured

Lake Manor
1666H32P01

3D Tours & videos

No 3d Tour Available

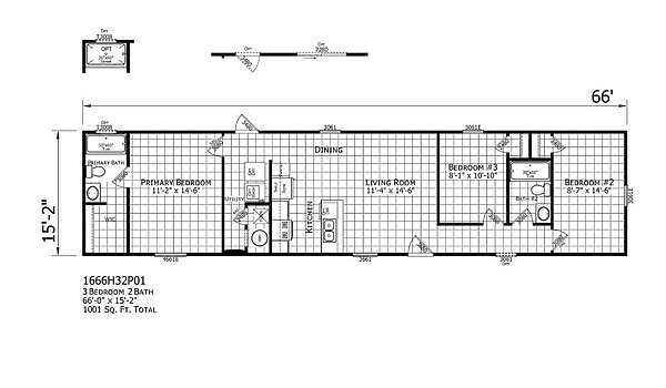
Floor plan

About this home

The Lake Manor / 1666H32P01 built by Champion Homes is a spacious home that combines comfort, style, and smart design. With 1,001 square feet, 3 bedrooms, and 2 bathrooms, The 1666H32P01 offers a layout that feels open and inviting. The kitchen sits at the center of the home and connects to the dining area and bright living room, creating a great space for everyday living. The private primary bedroom includes its own bath and walk-in closet, while two additional bedrooms share a second bath. The 1666H32P01 delivers practical space and welcoming comfort in one well-designed home.

This home is offered by

Share this home

Details

Built by Champion Homes
Bedrooms 3
Bathrooms 2.00
Square feet 1001
Length 66' 0"
Width 15' 2"
Sections 1
Stories 1
Style Ranch

Specifications

No specification data available

Please note

All sizes and dimensions are nominal or based on approximate builder measurements. The builder reserves the right to make changes due to any changes in material, color, specifications, and features anytime without notice or obligation.