Lake Manor
1676H32P01

Manufactured

Lake Manor
1676H32P01

3D Tours & videos

No 3d Tour Available

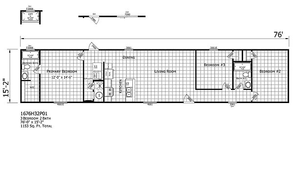
Floor plan

About this home

The Lake Manor / 1676H32P01 built by Champion Homes is a spacious home designed for comfort and easy everyday living. With 1,153 square feet, 3 bedrooms, and 2 bathrooms, The 1676H32P01 offers a layout that feels open while still providing private spaces. The kitchen sits at the center and connects to the dining area and large living room, creating a bright place for gathering with family or friends. The primary bedroom includes its own bath and walk-in closet, while two additional bedrooms share a second bath. The 1676H32P01 delivers space, comfort, and practical design in a welcoming home.

This home is offered by

Share this home

Details

Built by Champion Homes
Bedrooms 3
Bathrooms 2.00
Square feet 1153
Length 76' 0"
Width 15' 2"
Sections 1
Stories 1
Style Ranch

Specifications

No specification data available

Please note

All sizes and dimensions are nominal or based on approximate builder measurements. The builder reserves the right to make changes due to any changes in material, color, specifications, and features anytime without notice or obligation.