Clayton Park Model
Blue Springs

Park Model

Clayton Park Model
Blue Springs

3D Tours & videos

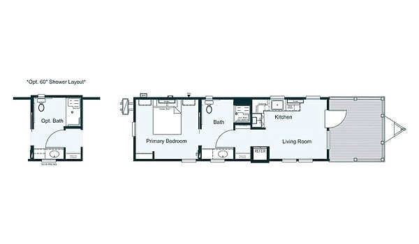
Floor plan

About this home

The one-story Blue Springs Park Model is a perfect cozy hideaway. Featuring a roll-in shower, this functional floor plan easily adapts to fit mobility and function impairment needs when paired with an entrance ramp. This beautiful park model helps make outdoor recreation more comfortable, accessible, and inclusive.
Share this home

Details

Built by Clayton Park Models
Bedrooms 1
Bathrooms 1.00
Square feet 399
Length 45' 0"
Width 12' 0"
Sections 1
Stories 1
Style Ranch

Specifications

Exterior Wall On Center: 16"O.C.
Exterior Wall Studs: 2"x4"
Floor Decking: 3/4" T&G OSB / 3/4" T & G Plywood Option
Floor Joists: 2"X6" 16" O.C.
Roof Truss: 2 x 6 16" O.C.
Side Wall Height: 90"
Insulation (Floors): R-11 Fiberglass Batt
Insulation (Walls): R-11 Fiberglass Batt
Insulation (Ceiling): R-11 Fiberglass Batt
Front Door: 36" x 80" 6 Panel Steel w/Storm
Rear Door: 36" Outswing Door (per print)
Siding: LP Smart Siding
Window Trim: 4/4" Trim
Window Type: White or Brown Low "E" Vinyl
Exterior Lighting: Ext. Light at Each Door
Safety Alarms: Smoke Detector / LP Gas Detector
Window Treatment: 2" Faux Wood Blinds
Window Type: White or Brown Low "E" Vinyl
Interior Doors: SYP Wood Doors
Interior Lighting: Can Lights
Electrical Service: 100 Amp Panel Box - No Cord
Furnace: 12,000 BTU Comfortaire Mini Split
Shut Off Valves Throughout: Under Sink Valves
Water Heater: Rennai Tankless Gas W/H
Bathroom Sink: China
Bathroom Lighting: LED Can Light
Bathroom Faucets: Single Lever
Bathroom Fans: YES
Bathroom Additional Specs: Shower Diverter / Faucet Single Lever / Mirror Oval Mirror
Bathroom Shower: Fiberglass 1 PC 54"
Bathroom Toilet Type: Elongated
Kitchen Sink: Stainless Steel
Kitchen Refrigerator: Frigidaire 18 Cu Ft. Refer
Kitchen Range Type: Frigidaire 30" Gas or Electric
Kitchen Range Hood: 30" w/Exhaust Fan & Light
Kitchen Faucets: Single Lever Satin Finish
Kitchen Countertops: Laminate Rolled Edge
Ceiling Fans: Ceiling Fan w/Downrod installed LR & BR

Please note

All sizes and dimensions are nominal or based on approximate builder measurements. The builder reserves the right to make changes due to any changes in material, color, specifications, and features anytime without notice or obligation.