Get a price quote

Please fill out the form below to submit a request for a price quote on this home. A sales representative will reach out as soon as possible. Fields marked with an asterisk (*) are required.

Alpha

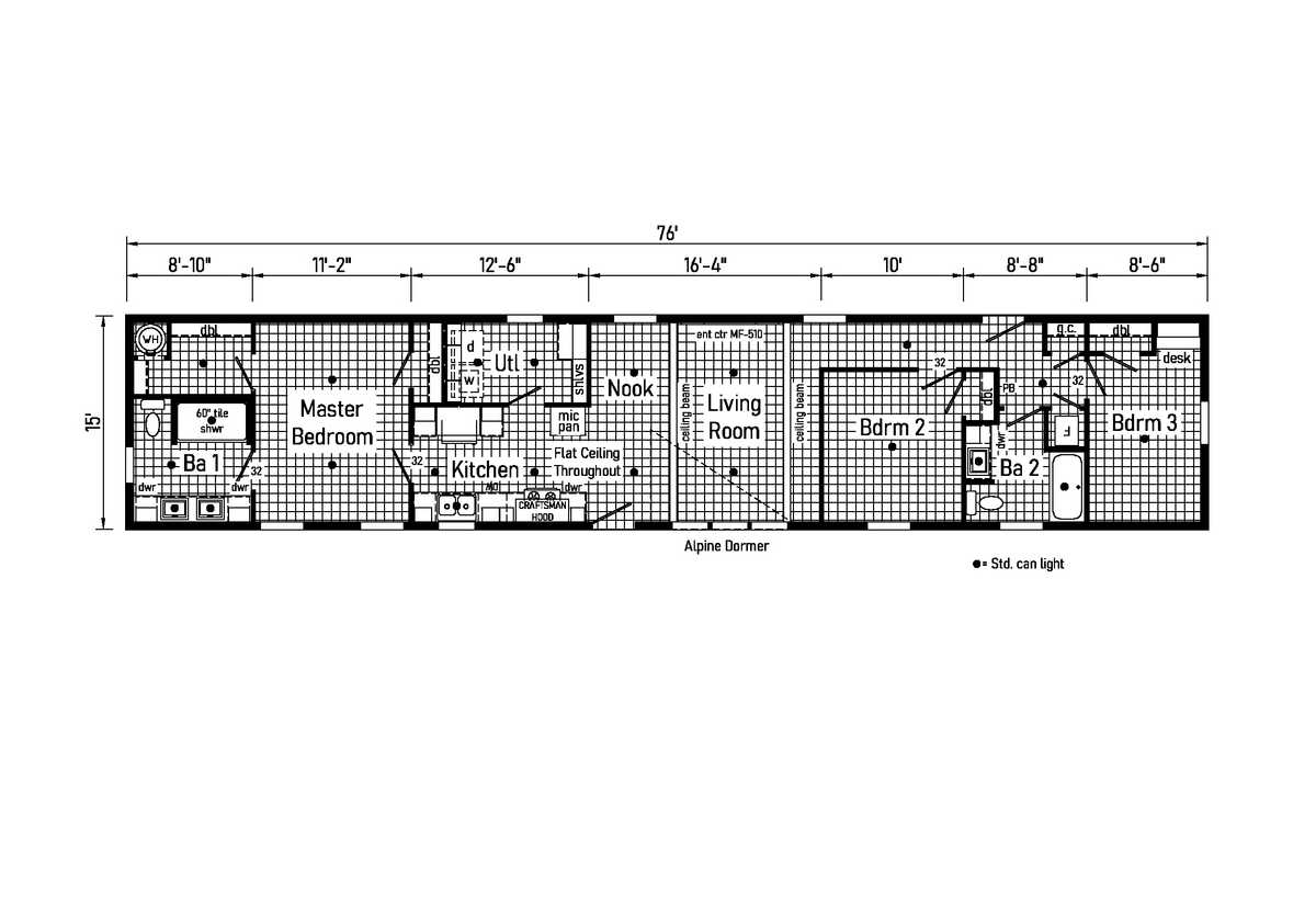
Helix 16763N

Beds: 3 Sq ft: 1140
Baths: 2.00 W x L: 16' 0" x 76' 0"

Home info

Trade in

Your info

By submitting this form you agree that manufactured housing professionals may call, text, or email you a price quote, request more information about your inquiry, and/or to discuss financing options. You also agree to our Terms of Use.